fbpixel
Mechelsesteenweg 11 - 2220 Heist-op-den-Berg
F

ZEER RUIME WONING MET 4 SLPK EN GARAGE NABIJ HEIST CENTRUM

location Mechelsesteenweg 11, 2220 Heist-op-den-Berg
bathroom

1  badkamer(s)

bedroom

4  slaapkamer(s)

surface

264 m² bew. opp.

ground surface

186 m² grondopp.

building year

Bouwjaar: 1918

price

€ 225.000

Positieve punten

  • 4 slaapkamers
  • Inpandige garage
  • Zuid-Oost oriëntatie
  • Nabij winkels, scholen en openbaar vervoer
GELIJKVLOERS
Inkomhal 30 m² op tegel. Leefruimte 40 m² op tegel. Eetkamer 24 m² op linoleum. Keuken 10 m² met keramische kookplaat, vaatwasser “Miele”, oven, dampkap “Novy” en dubbele spoelbak.
Wasplaats 20 m² op tegel inclusief toilet. Wasplaats 19 m² op tegel met voorziening voor wasmachine en droogkast. Berging 12,5 m² op tegel.
Inpandige garage 29 m² op tegel met automatische, sectionale poort en plaats voor 1 wagen.

Bergkelder 17,5 m² op beton.

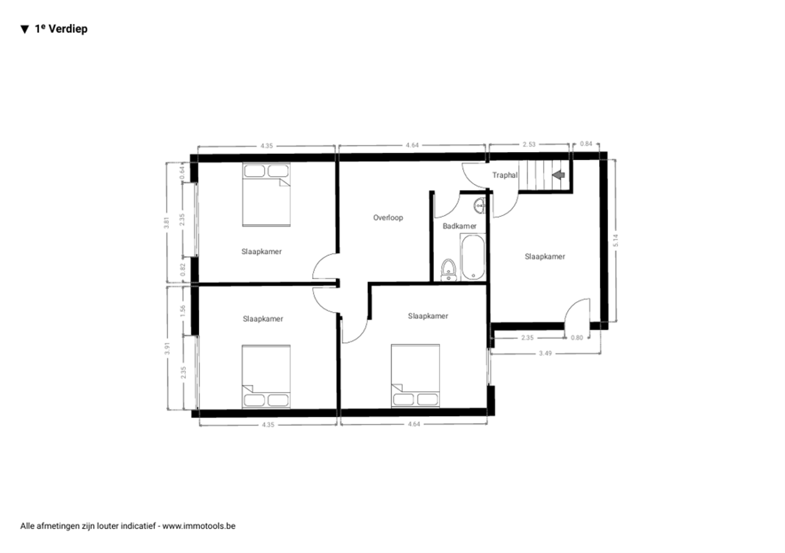
EERSTE VERDIEPING
Overloop 10,5 m² op linoleum met ingebouwde kasten. Eerste slaapkamer 13,5 m² op linoleum. Badkamer 4,5 m² met ligbad, enkele lavabo en toilet. Tweede slaapkamer 17 m² op linoleum. Derde slaapkamer 17 m² op linoleum. Vierde slaapkamer 17 m² op linoleum.

BIJZONDERHEDEN
Enkele en dubbele beglazing in aluminium schrijnwerk. Manuele rolluiken. Radiatoren. Aardgas CV.

POSITIEVE ASPECTEN
4 slaapkamers
Inpandige garage
Zuid-Oost oriëntatie
Nabij winkels, scholen en openbaar vervoer

Overige details

Algemene info +
Referentie nr.
7613161
Prijs
€ 225.000
Adres
Mechelsesteenweg 11, 2220 Heist-op-den-Berg
Staat
Te renoveren
Bouwjaar
1918
Oppervlakte grond
186m²
Bewoonbare oppervlakte
264m²
Oriëntatie achtergevel
Zuidoosten
Kadastraal inkomen
701
Indeling / ruimtes +
Slaapkamers
4
Slaapkamer 1 opp.
13.5m²
Slaapkamer 2 opp.
17m²
Slaapkamer 3 opp.
17m²
Slaapkamer 4 opp.
17m²
Oppervlakte woonkamer
40m²
Badkamers
1
Garages
1
Parking
Ja
Aantal Parkings (binnen)
1
Keuken opp.
10m²
Kelder
Ja
Energie +
EPC waarde
582kWh/m²
EPC unieke code
20251008-0003701630-res-1
Verwarming
Gas cv
Dubbele beglazing
Ja
Voorzieningen +
Elektriciteit?
Ja
Elektriciteitskeuring?
Ja, niet conform
Gas?
Ja
Water?
Ja
Stedenbouwkundig +
Stedenbouwkundige vergunning
Geen vergunning uitgereikt
Dagvaarding en herstelvordering
Geen rechterlijke herstelmaatregel of bestuurlijke maatregel opgelegd
Stedenbouwkundige bestemming
Woongebied
Voorkooprecht
Geen voorkooprecht ruimtelijke ordening aanwezig
Verkavelingsvergunning
Geen vergunning uitgereikt
WORG
Nee
Financieel +
Prijs:
€ 225.000
Grondaandeel:
€ 225.000
Registratierechten (2%):
€ 4.500
BTW:
Niet onder BTW
Totaal (Zonder notariskosten):
€ 229.500

2% geldt enkel indien voldaan wordt aan de voorwaarden, en als dit de enige en eigen woning is.

Mathias Vleugels

Meer informatie?

Ik ben Mathias Vleugels, jouw contactpersoon voor dit pand, waarmee kan ik je helpen?

Mathias Vleugels

Meer informatie

Ik ben Mathias Vleugels, jouw contactpersoon voor dit pand, waarmee kan ik je helpen?

Contacteer ons

Heist-op-den-Berg

Ontdek de buurt

Heist-op-den-Berg is een gemeente in de Belgische provincie Antwerpen, in de Zuiderkempen, en heeft diverse troeven en trekpleisters waaronder het prachtige cultuurcentrum ‘Zwaneberg’, een schaatsbaan, provinciaal Groendomein ‘De Averegten’, het ‘Hof Van Riemen’, het treinmuseum, de water- en uitkijktoren, en zo veel meer…

Veelgestelde vragen

Ik doe een bod, wat nu? +

Zodra je een bod doet én de verkoper accepteert het, ben je verplicht om door te gaan met de aankoop. Het intrekken van je bod - om welke reden ook - kan resulteren in een schadevergoeding die zo’n 10% van de aankoopprijs bedraagt.

Lees meer
Hoeveel kosten betaal ik nog bovenop de aankoopprijs? +

Er komen nog heel wat kosten kijken bovenop de aankoopprijs: verzekeringen, registratierechten... Laat je goed informeren, en lees in onze kopergids waar je rekening mee moet houden.

Lees meer
Ik wil een nieuwe woning kopen, maar moet mijn oude ook nog verkopen. Help! +

Je huis of appartement verkopen is een belangrijke stap in je leven. Eén met uitdagingen, want er zijn heel wat zaken waar je extra rekening mee moet houden. Van attesten en vergunningen tot stijgende hypotheekrentes en dalende interesse van potentiële kopers. Denk je er dus aan om te verkopen? Of heb je een nieuwe woning op het oog? Met onze verkopersgids bieden we nuttige tips die jou vooruit helpen voor, tijdens en na de verkoop.

Lees meer

Ontdek al onze gelijkaardige panden

Huis te Heist-Op-Den-Berg

€ 225.000

location Diepenbroekstraatje 9, 2220 Heist-op-den-Berg
surface 185 m²
bedrooms 4  slaapkamer(s)
bathrooms 1  badkamer(s)
F
Nieuw
Kerkhofstraat 41 - 2220 Heist-op-den-Berg afbeelding 1
Kerkhofstraat 41 - 2220 Heist-op-den-Berg afbeelding 2
Kerkhofstraat 41 - 2220 Heist-op-den-Berg afbeelding 3
Kerkhofstraat 41 - 2220 Heist-op-den-Berg afbeelding 4

Huis te Heist-Op-Den-Berg

€ 239.000

location Kerkhofstraat 41, 2220 Heist-op-den-Berg
surface 124 m²
bedrooms 2  slaapkamer(s)
bathrooms 1  badkamer(s)
F

Huis te Lier

€ 187.500

location Maasfortbaan 3, 2500 Lier
surface 125 m²
bedrooms 2  slaapkamer(s)
bathrooms 1  badkamer(s)
F

Huis te Lier

€ 219.500

location Hazenstraat 13, 2500 Lier
surface 110 m²
bedrooms 2  slaapkamer(s)
bathrooms 1  badkamer(s)
D

Verkoop uw eigen woning met Immo Point

Overweegt u om uw woning te verkopen?

Gratis schatting van uw woning
verkoop

Om deze functie te gebruiken dient u ingelogd te zijn.

Login / maak een account aan