fbpixel
HEIKANTLAAN 19
D

GEZINSWONING MET GROTE TUIN, GARAGE EN POTENTIEEL

location Heikantlaan 19, 2910 Essen
bathroom

2  badkamer(s)

bedroom

4  slaapkamer(s)

surface

167 m² bew. opp.

ground surface

1704 m² grondopp.

building year

Bouwjaar: 1966

price

€ 425.000

Gelegen te Heikant - Essen een woning met potentieel en enkele uitzonderlijke pluspunten.

Locatie: Op wandelafstand van het station, sportpark, het centrum Essen en nabij de Nederlandse grens.
Gevoel van vrijstaand wonen: Opgetrokken als halfopen bebouwing maar doordat de oprit het gelijkvloers scheidt van de buren krijg je het gevoel en comfort van vrijstaand wonen.
Makkelijke uitbreidingsmogelijkheid: De bewoonbare oppervlakte is ca. 167m². Met een zolder die afgewerkt kan worden tot een extra ruimte van 24m².
Veel potentieel: Optrekken van de woonkamer en verplaatsen van de trap kan u nog meer leefcomfort bieden.

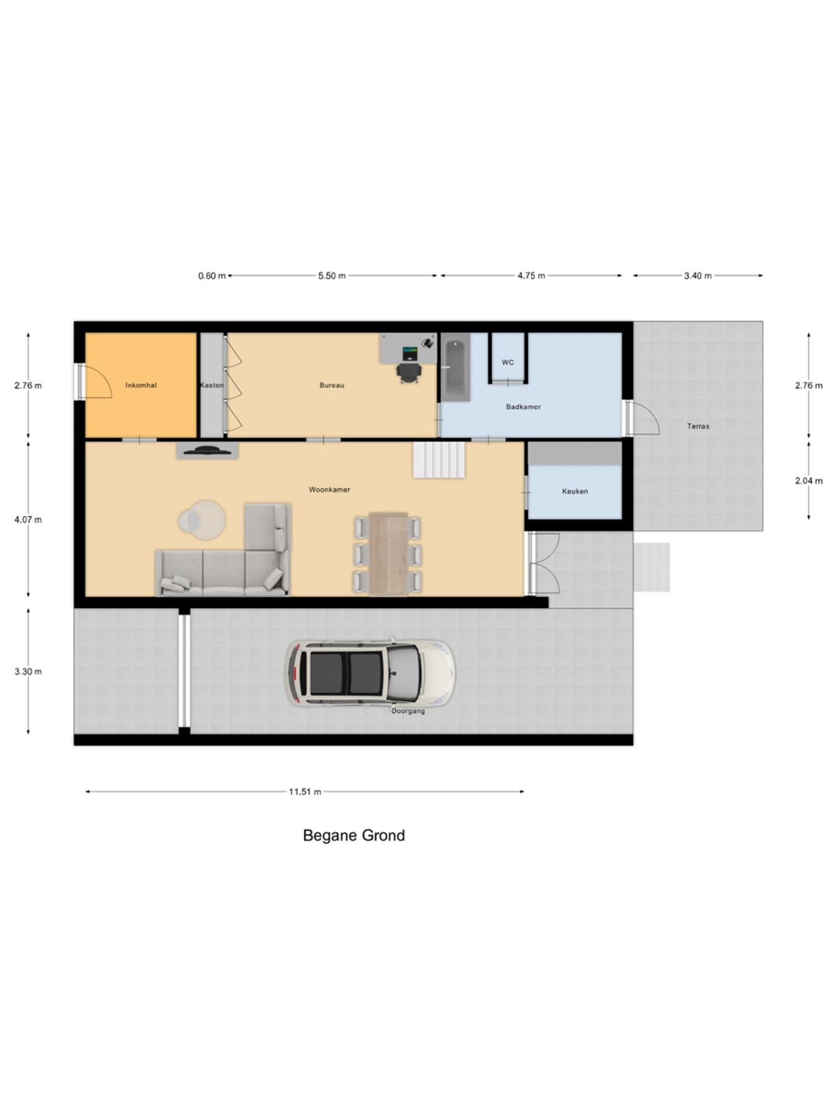
Huidige indeling
GELIJKVLOERS
Inkomhal ca. 9m² met ingemaakte kasten. Woonkamer ca. 47m², op houten vloer en voorzien van een open haard. Een bureaukamer van ca. 15m². De achterinkomhal met toilet en douche/wasplaats ca. 13m². Een keuken achterin van ca. 5m².

EERSTE VERDIEPING
Op de verdieping drie ruime slaapkamers van ca. 15m², 15m² en 18m². De zolderkamer van 24m² biedt mogelijkheden tot dressing of speelkamer. De badkamer is gerenoveerd in 2023 en voorzien van inloopdouche, lavabo en toilet, handige veluxdakraam en ingebouwde spotjes.
Het dak is geïsoleerd en dakramen geplaatst in 2023.

TUIN
Een natuurlijk ontwikkelde tuin van meer dan 1000m².

GARAGE
Op de perceelgrens een garage van CA. 44m² een mooie extra troef voor autoliefhebbers of waar hobby-tuiniers extra materiaal kunnen stockeren.
Deze garage is gebouwd in 1966. Waarbij een herstelvordering is opgelegd, met huidige status: Hersteld.
De oprit rechts van de woning met 3,3 meter breed, overdekt en afgeschermd met een poort is een leuke uitbreiding van het aantal autostaanplaatsen.

Kortom, een mogelijkheid voor grotere en nieuw-samengestelde gezinnen of jonge koppels die een gezellige thuis zoeken.

Potentieel
De herindeling zoals wij deze voorstellen is gezien de houten structuur relatief eenvoudig te realiseren en vormt het huis om tot een prachtige, comfortabele en tijdloze gezinswoning. Waarbij drie volwaardige slaapkamers voorzien worden van een dressing of extra opbergruimte. Het verplaatsen van de trap zorgt op het gelijkvloers voor het opentrekken van de ruimte en op de verdieping voor een uitbreiding van de badkamer en de mogelijkheid om het toilet apart te voerzien. Bijkomend ontstaat zo nog een aparte wasplaats of ruimte om vrij in te delen.

Wilt u zelf de mogelijkheden komen bekijken en afstemmen of uw dromen hier waargemaakt kunnen worden?
Maak uw afspraak via wuustwezel@immopoint.be of 03 240 11 99

Overige details

Algemene info +
Referentie nr.
7321846
Prijs
€ 425.000
Adres
Heikantlaan 19, 2910 Essen
Beschikbaar
Vanaf akte
Staat
Te renoveren
Bouwjaar
1966
Renovatiejaar
2023
Oppervlakte grond
1704m²
Bewoonbare oppervlakte
167m²
Gevelbreedte
7m
Kadastraal inkomen
1048
Indeling / ruimtes +
Slaapkamers
4
Slaapkamer 1 opp.
15m²
Slaapkamer 2 opp.
15m²
Slaapkamer 3 opp.
18m²
Oppervlakte woonkamer
47m²
Badkamers
2
Terras
Ja
Garages
1
Keuken opp.
5m²
Tuin
Ja
Energie +
EPC waarde
390kWh/m²
EPC unieke code
3476608-res-1
Verwarming
Stookolie cv
Voorzieningen +
Elektriciteitskeuring?
Ja, niet conform
Stedenbouwkundig +
Stedenbouwkundige vergunning
Vergunning uitgereikt
Dagvaarding en herstelvordering
Geen rechterlijke herstelmaatregel of bestuurlijke maatregel opgelegd
Stedenbouwkundige bestemming
Woongebied
Voorkooprecht
Geen voorkooprecht ruimtelijke ordening aanwezig
Verkavelingsvergunning
Geen vergunning uitgereikt
WORG
Nee
Financieel +
Prijs:
€ 425.000
Grondaandeel:
€ 425.000
Registratierechten (2%):
€ 8.500
BTW:
Niet onder BTW
Totaal (Zonder notariskosten):
€ 433.500

2% geldt enkel indien voldaan wordt aan de voorwaarden, en als dit de enige en eigen woning is.

Glenn De Weerdt

Meer informatie?

Ik ben Glenn De Weerdt, jouw contactpersoon voor dit pand, waarmee kan ik je helpen?

Glenn De Weerdt

Meer informatie

Ik ben Glenn De Weerdt, jouw contactpersoon voor dit pand, waarmee kan ik je helpen?

Contacteer ons

Veelgestelde vragen

Ik doe een bod, wat nu? +

Zodra je een bod doet én de verkoper accepteert het, ben je verplicht om door te gaan met de aankoop. Het intrekken van je bod - om welke reden ook - kan resulteren in een schadevergoeding die zo’n 10% van de aankoopprijs bedraagt.

Lees meer
Hoeveel kosten betaal ik nog bovenop de aankoopprijs? +

Er komen nog heel wat kosten kijken bovenop de aankoopprijs: verzekeringen, registratierechten... Laat je goed informeren, en lees in onze kopergids waar je rekening mee moet houden.

Lees meer
Ik wil een nieuwe woning kopen, maar moet mijn oude ook nog verkopen. Help! +

Je huis of appartement verkopen is een belangrijke stap in je leven. Eén met uitdagingen, want er zijn heel wat zaken waar je extra rekening mee moet houden. Van attesten en vergunningen tot stijgende hypotheekrentes en dalende interesse van potentiële kopers. Denk je er dus aan om te verkopen? Of heb je een nieuwe woning op het oog? Met onze verkopersgids bieden we nuttige tips die jou vooruit helpen voor, tijdens en na de verkoop.

Lees meer

Ontdek al onze gelijkaardige panden

Nieuw
TESSENDERLO Begijnenwinning 56a afbeelding 1
TESSENDERLO Begijnenwinning 56a afbeelding 2
TESSENDERLO Begijnenwinning 56a afbeelding 3
TESSENDERLO Begijnenwinning 56a afbeelding 4

Huis te Tessenderlo-Ham

€ 475.000

location Begijnenwinning 56A, 3980 Tessenderlo-Ham
surface 190 m²
bedrooms 2  slaapkamer(s)
bathrooms 1  badkamer(s)
B
energiezuinig
NB//ESSENSTEENWEG 31 afbeelding 1
NB//ESSENSTEENWEG 31 afbeelding 2
NB//ESSENSTEENWEG 31 afbeelding 3
NB//ESSENSTEENWEG 31 afbeelding 4

Huis te Kalmthout

€ 410.000

location ESSENSTEENWEG 31, 2920 Kalmthout
surface 220 m²
bedrooms 3  slaapkamer(s)
bathrooms 1  badkamer(s)
A

Verkoop uw eigen woning met Immo Point

Overweegt u om uw woning te verkopen?

Gratis schatting van uw woning
verkoop

Om deze functie te gebruiken dient u ingelogd te zijn.

Login / maak een account aan