fbpixel
Steynstraat 111 - 2660 Hoboken
D

TE RENOVEREN OPBRENGSTEIGENDOM VAN 7 APPARTEMENTEN

location 2660 Hoboken
bathroom

7  badkamer(s)

bedroom

12  slaapkamer(s)

surface

546 m² bew. opp.

ground surface

415 m² grondopp.

building year

Bouwjaar: 1961

price

€ 995.000

Positieve punten

  • Opbrengsteigendom
  • Renovatieproject
  • Zeven appartementen
  • Zes garages optioneel
  • Tuin en terrassen
  • Investering met potentieel
  • Centrale ligging
Opbrengsteigendom met zeven appartementen en zes garages

In een interessante woonomgeving wordt dit opbrengsteigendom te koop aangeboden, bestaande uit zeven appartementen en zes garages. Het volledige gebouw dient gerenoveerd te worden, wat het een ideale opportuniteit maakt voor investeerders die op zoek zijn naar een project met aanzienlijk potentieel.

Indeling van het gebouw

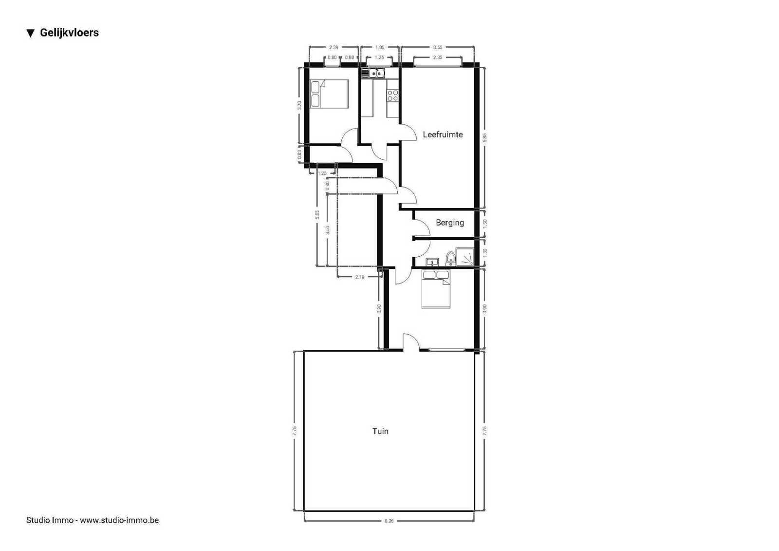
Gelijkvloers

Grootste appartement met tuin en rechtstreekse toegang tot een garage via de tuin.

Kelderberging voor elk appartement.

Alle zes garages bevinden zich op dit niveau, waarvan twee ook nog beschikken over een ruime oprit.

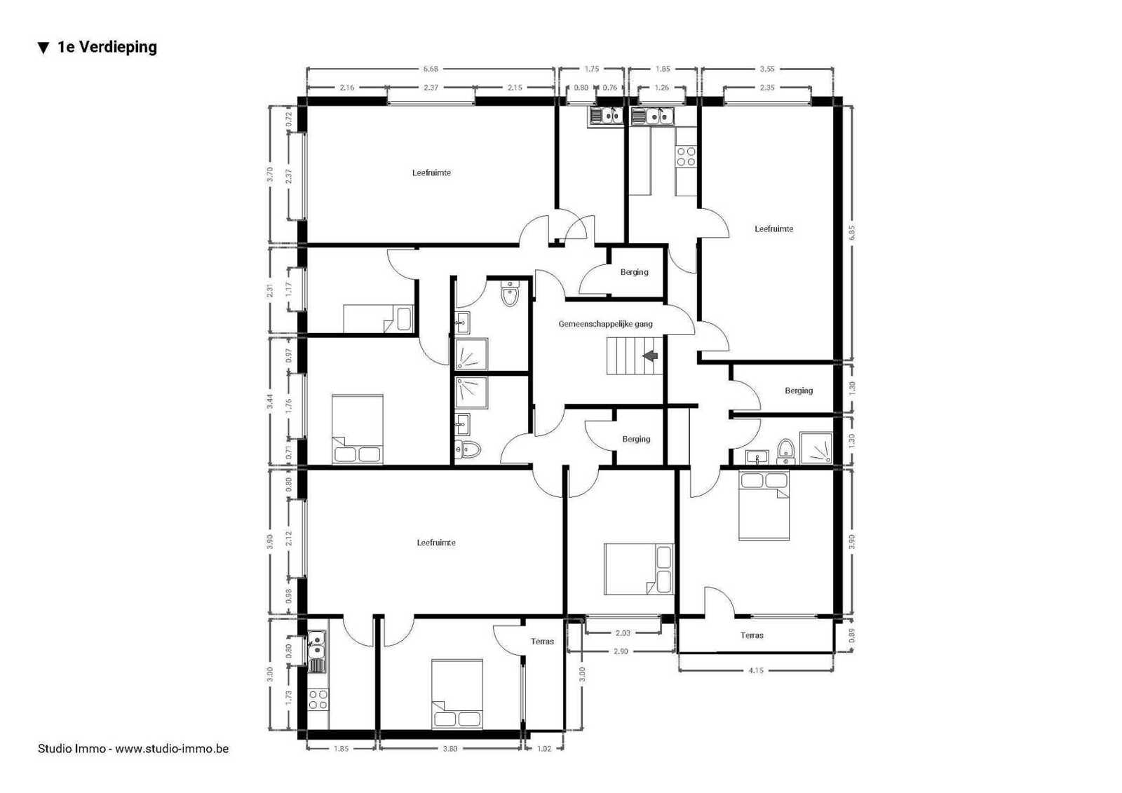
Eerste verdieping

Drie appartementen van telkens ca. 78 m².

Twee appartementen met 2 slaapkamers.

Eén appartement met 1 slaapkamer en terras.

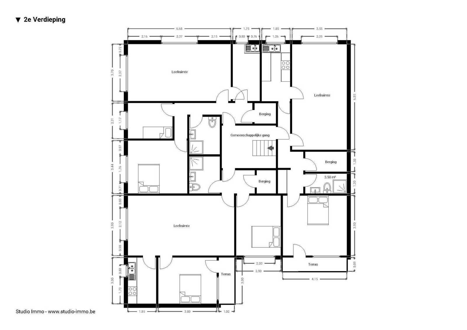
Tweede verdieping

Drie appartementen van telkens ca. 78 m².

Twee appartementen met 2 slaapkamers, waarvan één met terras.

Eén appartement met 1 slaapkamer en terras.

Garages

Garages zijn niet inbegrepen in de vraagprijs en kunnen bijkomend aangekocht worden voor € 180.000

Dit opbrengsteigendom omvat in totaal zeven appartementen en is een bijzonder compleet geheel met tuin, terrassen en kelderbergingen. Na renovatie biedt dit gebouw een aantrekkelijk rendement en tal van mogelijkheden. De zes garages maken het aanbod nog sterker, maar zijn optioneel en kunnen bijkomend aangekocht worden voor € 180.000. Het betreft steeds de aankoop van het volledige gebouw.

📞 Interesse? Neem snel contact op via 03 535 12 75 voor meer informatie, meer foto's of een afspraak.
Surf naar www.immopoint.be en download alle EPC's, asbestattesten en plannen.

RENOVATIEPLICHT: Gebouwen met een energielabel “E” of “F” zullen verplicht binnen de 6 jaar energetisch gerenoveerd moeten worden en dit zodat ze minstens over een energielabel “D” beschikken. Bij dit pand zal de renovatieplicht dus van toepassing zijn.

Overige details

Algemene info +
Referentie nr.
7222211
Prijs
€ 995.000
Adres
Op aanvraag
Beschikbaar
Onmiddellijk
Staat
Te renoveren
Bouwjaar
1961
Oppervlakte grond
415m²
Bewoonbare oppervlakte
546m²
Kadastraal inkomen
4040
Indeling / ruimtes +
Slaapkamers
12
Badkamers
7
Garages
6
Aantal Parkings (buiten)
2
Aantal Parkings (binnen)
6
Tuin
Ja
Energie +
EPC waarde
337kWh/m²
EPC unieke code
In aanvraag
Verwarming (type)
Individueel
Verwarming
Gas cv
Dubbele beglazing
Ja
Voorzieningen +
Elektriciteit?
Ja
Gas?
Ja
Water?
Ja
Stedenbouwkundig +
Stedenbouwkundige vergunning
Vergunning uitgereikt
Dagvaarding en herstelvordering
Rechterlijke herstelmaatregel opgelegd
Stedenbouwkundige bestemming
Woongebied
Voorkooprecht
Geen voorkooprecht ruimtelijke ordening aanwezig
Verkavelingsvergunning
Geen vergunning uitgereikt
WORG
Nee
Financieel +
Prijs:
€ 995.000
Grondaandeel:
€ 995.000
Registratierechten (2%):
€ 19.900
BTW:
Niet onder BTW
Totaal (Zonder notariskosten):
€ 1.014.900

2% geldt enkel indien voldaan wordt aan de voorwaarden, en als dit de enige en eigen woning is

Kevin Van Ham

Contacteer uw makelaar

Ik ben Kevin Van Ham, jouw makelaar voor dit huis te Hoboken, waarmee kan ik u helpen?

Kevin Van Ham

Contacteer uw makelaar

Ik ben Kevin Van Ham, jouw makelaar voor dit huis te Brasschaat, waarmee kan ik u helpen?

Contacteer ons

Veelgestelde vragen

Ik doe een bod, wat nu? +

Zodra je een bod doet én de verkoper accepteert het, ben je verplicht om door te gaan met de aankoop. Het intrekken van je bod - om welke reden ook - kan resulteren in een schadevergoeding die zo’n 10% van de aankoopprijs bedraagt.

Lees meer
Hoeveel kosten betaal ik nog bovenop de aankoopprijs? +

Er komen nog heel wat kosten kijken bovenop de aankoopprijs: verzekeringen, registratierechten... Laat je goed informeren, en lees in onze kopergids waar je rekening mee moet houden.

Lees meer
Ik wil een nieuwe woning kopen, maar moet mijn oude ook nog verkopen. Help! +

Je huis of appartement verkopen is een belangrijke stap in je leven. Eén met uitdagingen, want er zijn heel wat zaken waar je extra rekening mee moet houden. Van attesten en vergunningen tot stijgende hypotheekrentes en dalende interesse van potentiële kopers. Denk je er dus aan om te verkopen? Of heb je een nieuwe woning op het oog? Met onze verkopersgids bieden we nuttige tips die jou vooruit helpen voor, tijdens en na de verkoop.

Lees meer

Ontdek al onze gelijkaardige panden

Prestige
LOUIS VERVOORTLAAN 65 TE SCHOTEN afbeelding 1
LOUIS VERVOORTLAAN 65 TE SCHOTEN afbeelding 2
LOUIS VERVOORTLAAN 65 TE SCHOTEN afbeelding 3
LOUIS VERVOORTLAAN 65 TE SCHOTEN afbeelding 4

Villa te Schoten

€ 795.000

location Louis Vervoortlaan 65, 2900 Schoten
surface 229 m²
bedrooms 4  slaapkamer(s)
bathrooms 2  badkamer(s)
B
Prestige
ALFONS SERVAISLEI 23 TE SCHOTEN afbeelding 1
ALFONS SERVAISLEI 23 TE SCHOTEN afbeelding 2
ALFONS SERVAISLEI 23 TE SCHOTEN afbeelding 3
ALFONS SERVAISLEI 23 TE SCHOTEN afbeelding 4

Villa te Schoten

€ 1.285.000

location Alfons Servaislei 23, 2900 Schoten
surface 333 m²
bedrooms 4  slaapkamer(s)
bathrooms 4  badkamer(s)
B
Prestige
PELIKAANDREEF 3 SCHOTEN afbeelding 1
PELIKAANDREEF 3 SCHOTEN afbeelding 2
PELIKAANDREEF 3 SCHOTEN afbeelding 3
PELIKAANDREEF 3 SCHOTEN afbeelding 4

Villa te Schoten

€ 995.000

location Pelikaandreef 3, 2900 Schoten
surface 298 m²
bedrooms 3  slaapkamer(s)
bathrooms 2  badkamer(s)
E

Verkoop uw eigen woning met Immo Point

Overweegt u om uw woning te verkopen?

Gratis schatting van uw woning
verkoop

Om deze functie te gebruiken dient u ingelogd te zijn.

Login / maak een account aan