fbpixel
Ter Voort 129 bus 2 - Westerlo (Voortkapel)
A

Knap 2 slk. nieuwbouwapp. met ZW- terras & ondergronds: P+B

location Ter Voort 129/2, 2260 Westerlo
bathroom

1  badkamer(s)

bedroom

2  slaapkamer(s)

surface

75,2 m² bew. opp.

ground surface

300 m² grondopp.

building year

Provisie: € 50 /maand

price

€ 960

Positieve punten

  • Onmiddellijk beschikbaar
  • Energiezuinig -> zonnepanelen
  • Lift aanwezig
  • Zuidwest gericht terras met zicht op groen
  • Instapklaar: volledig geschilderd, voorzien van armaturen en gordijnrails
  • Verwarmd met vloerverwarming (warmtepomp - koeling door middel van vloercirculatie)
  • Ruim- en lichtrijk
  • Ondergronds: parkeerplaats + ruime private berging, gemeenschappelijk: fietsenstalling

Energiezuinig modern nieuwbouwappartement met 2 slaapkamers en zonnig, Zuidwest gericht terras.

Ligging: “Residentie De Meeuw”: een kleinschalig complex van 6 appartementen, gesitueerd in het centrum van “Voortkapel” (gehucht te Westerlo), doch rustig gelegen. Met verschillende faciliteiten zoals scholen, winkels, openbaar vervoer... op wandelafstand.

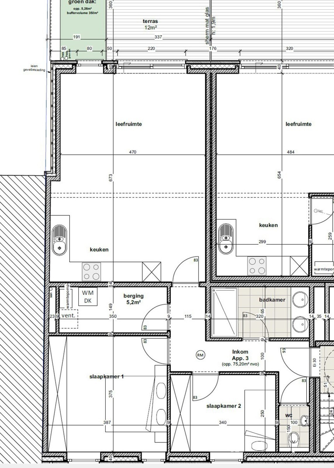
INDELING

Dit mooi- en lichtrijk appartement situeert zich op de eerste verdieping heeft volgende indeling:

- Private inkomhal met apart toilet

- Twee slaapkamers (14,5m² & 8,5m²)

- Moderne badkamer met inloopdouche, enkel lavabomeubel, spiegel- en opbergkasten

- Leefruimte met moderne open keuken die over kwaliteitsvolle, ingebouwde toestellen van het merk “Miele” beschikt (keramische kookplaat inclusief afzuigkap, ijskast, diepvriezer, vaatwasmachine, bakoven en een enkele spoelbak).

- Berging/technische ruimte met aansluiting voor de wasmachine.

De eetkamer geniet veel lichtinval dankzij de aanwezigheid van plafondhoge ramen en verleent toegang tot het Zuidwest georiënteerd terras van 12m², met uitzicht op groen.

PARKING

Ondergronds beschikt men over een autostandplaats, een ruime privatieve berging en een gemeenschappelijke fietsenstalling.

BIJZONDERHEDEN

ONMIDDELLIJK BESCHIKBAAR

- Toilet is aangesloten op het regenwater

- Energiezuinig: E-peil 22 -> zonnepanelen

- Volledig geschilderd, voorzien van armaturen en gordijnrails

- Maandelijkse bijdrage = €50 (provisie)

- Ventilatie C+

- Verwarmd met vloerverwarming (warmtepomp - koeling door middel van vloercirculatie)

Aansluitingskosten nutsvoorzieningen (water, elektriciteit en telecom…) ten koste van de huurder(s)

POSITIEVE ASPECTEN

- Gunstige ligging t.o.v. de markt, openbaar vervoer, scholen en winkels

- Lift aanwezig

- Kleinschalig complex

- Terras met uitzicht op groen (Zuidwest gericht)

Overige details

Algemene info +
Referentie nr.
7319726
Prijs
€ 960
Provisie
50€/maand
Adres
Ter Voort 129/2, 2260 Westerlo
Beschikbaar
Onmiddellijk
Verdieping
1
Staat
Nieuw
Oppervlakte grond
300m²
Bewoonbare oppervlakte
75,2m²
Indeling / ruimtes +
Slaapkamers
2
Slaapkamer 1 opp.
14.5m²
Slaapkamer 2 opp.
8.5m²
Oppervlakte woonkamer
31.5m²
Badkamers
1
Douches
1
Aantal toiletten
1
Terras
Ja
Aantal Terrassen
1
Terras 1 opp.
12m²
Garages
1
Aantal Parkings (binnen)
1
Keuken (type)
volledig geïnstalleerd
Kelder
Ja
Energie +
EPC waarde
33kWh/m²
EPC unieke code
13049-omv_2023128407/ep18659/sv/a001/d02
Verwarming (type)
Individueel
Verwarming
Warmtepomp
Dubbele beglazing
Ja
Voorzieningen +
Elektriciteit?
Ja
Elektriciteitskeuring?
Ja, conform
Water?
Ja
Lift
Ja
Stedenbouwkundig +
Stedenbouwkundige vergunning
Niet meegedeeld
Dagvaarding en herstelvordering
Niet meegedeeld
Stedenbouwkundige bestemming
Niet meegedeeld
Voorkooprecht
Niet meegedeeld
Verkavelingsvergunning
Geen vergunning uitgereikt
WORG
Nee
Financieel +
Prijs:
€ 960
Provisie:
€ 50 /maand
Steffi Berghmans

Contacteer uw makelaar

Ik ben Steffi Berghmans, jouw makelaar voor dit appartement te Westerlo, waarmee kan ik u helpen?

Steffi Berghmans

Contacteer uw makelaar

Ik ben Steffi Berghmans, jouw makelaar voor dit appartement te Kasterlee, waarmee kan ik u helpen?

Contacteer ons

Westerlo

Ontdek de buurt

Westerlo is gelegen in het zuiden van de Antwerpse Kempen, op de grens met het Hageland en de Limburgse Kempen. Deze gemeente is uiterst goed bereikbaar, zowel via de E313 als via de E34 én bevindt zich centraal tussen Antwerpen en Hasselt.

Veelgestelde vragen

Mag de verhuurder de huur zomaar opslaan? +

Kort gezegd, neen. De huurprijs die wordt vastgelegd in het huurcontract is de huurprijs die blijft gelden gedurende de volledige looptijd van het contract. Je huurder heeft wel het recht om (bij een huurcontract van negen jaar) na elke periode van drie jaar de huur te herbekijken. Dit moet wel altijd in onderling overleg met jou gebeuren. De verhuurder moet ook kunnen aantonen dat de huurverhoging verantwoord is - bijvoorbeeld na een grote energetische aanpassing. Ben je niet akkoord en wil je in het pand blijven wonen? Dan moet de vrederechter uitsluitsel brengen.

Lees meer
Hoe kan ik mij voor een pand kandidaat stellen? +

Online kan je via onze site jouw kandidatuur indienen. In dit huurdersprofiel zit reeds allerhande belangrijke informatie om jouw kandidatuur kracht bij te zetten. Door deze informatie via je huurdersprofiel te verzenden, kunnen wij jouw kandidatuur meteen voorstellen aan de eigenaar van het huurpand.

Ontdek al onze gelijkaardige panden

VIP
WESTERLO-TONGERLO De Trannoyplein 6C afbeelding 1
WESTERLO-TONGERLO De Trannoyplein 6C afbeelding 2
WESTERLO-TONGERLO De Trannoyplein 6C afbeelding 3
WESTERLO-TONGERLO De Trannoyplein 6C afbeelding 4

Appartement te Westerlo Tongerlo

€ 990

location De Trannoyplein 6/C, 2260 Westerlo Tongerlo
surface 127 m²
bedrooms 2  slaapkamer(s)
bathrooms 1  badkamer(s)
A
VIP
Westerlo (Voortkapel) - Ter Voort 142 A afbeelding 1
Westerlo (Voortkapel) - Ter Voort 142 A afbeelding 2
Westerlo (Voortkapel) - Ter Voort 142 A afbeelding 3
Westerlo (Voortkapel) - Ter Voort 142 A afbeelding 4

Gelijkvloerse Verdieping te Westerlo

€ 1.050

location Ter Voort 142/A, 2260 Westerlo
surface 117,6 m²
bedrooms 3  slaapkamer(s)
bathrooms 1  badkamer(s)
A
energiezuinig
Grote Baan 84/01 - 2235 Hulshout afbeelding 1
Grote Baan 84/01 - 2235 Hulshout afbeelding 2
Grote Baan 84/01 - 2235 Hulshout afbeelding 3
Grote Baan 84/01 - 2235 Hulshout afbeelding 4

Gelijkvloerse Verdieping te Hulshout

€ 750

location Grote Baan 84/1, 2235 HULSHOUT
surface 69 m²
bedrooms 1  slaapkamer(s)
bathrooms 1  badkamer(s)
A
VIP
VEERLE-LAAKDAL Vorstsebaan 4 bus 3 afbeelding 1
VEERLE-LAAKDAL Vorstsebaan 4 bus 3 afbeelding 2
VEERLE-LAAKDAL Vorstsebaan 4 bus 3 afbeelding 3
VEERLE-LAAKDAL Vorstsebaan 4 bus 3 afbeelding 4

Appartement te Veerle

€ 900

location Vorstse Baan 4/3, 2431 VEERLE
surface 133 m²
bedrooms 2  slaapkamer(s)
bathrooms 1  badkamer(s)
A
energiezuinig
Geel Xantenstraat 29/A afbeelding 1
Geel Xantenstraat 29/A afbeelding 2
Geel Xantenstraat 29/A afbeelding 3
Geel Xantenstraat 29/A afbeelding 4

Appartement te Geel

€ 850

location Xantenstraat 29/A, 2440 GEEL
surface 95 m²
bedrooms 2  slaapkamer(s)
bathrooms 1  badkamer(s)
B
energiezuinig
Schrieksesteenweg 40, bus 4 - 2221 Heist-op-den-Berg afbeelding 1
Schrieksesteenweg 40, bus 4 - 2221 Heist-op-den-Berg afbeelding 2
Schrieksesteenweg 40, bus 4 - 2221 Heist-op-den-Berg afbeelding 3
Schrieksesteenweg 40, bus 4 - 2221 Heist-op-den-Berg afbeelding 4

Appartement te Heist-Op-Den-Berg Booischot

€ 930

location Schrieksesteenweg 40/4, 2221 Heist-op-den-Berg Booischot
surface 80 m²
bedrooms 1  slaapkamer(s)
bathrooms 1  badkamer(s)
A

Verkoop uw eigen woning met Immo Point

Overweegt u om uw woning te verkopen?

Gratis schatting van uw woning
verkoop

Om deze functie te gebruiken dient u ingelogd te zijn.

Login / maak een account aan