Immopoint | Nieuwbouw | TE RENOVEREN OPBRENGSTEIGENDOM VAN 7 APPARTEMENTEN

Steynstraat 111 - 2660 Hoboken

TE RENOVEREN OPBRENGSTEIGENDOM VAN 7 APPARTEMENTEN

Prijs op aanvraag excl. kosten

Locatie

Steynstraat 111, 2660 Hoboken

price

Prijs op aanvraag

Opbrengsteigendom met 7 appartementen en 6 garages

Dit opbrengsteigendom biedt investeerders een unieke kans: een volledig gebouw met 7 appartementen en 6 garages in een interessante woonomgeving. Het pand dient volledig gerenoveerd te worden, maar heeft dankzij zijn omvang en indeling een aanzienlijk potentieel.

Indeling:

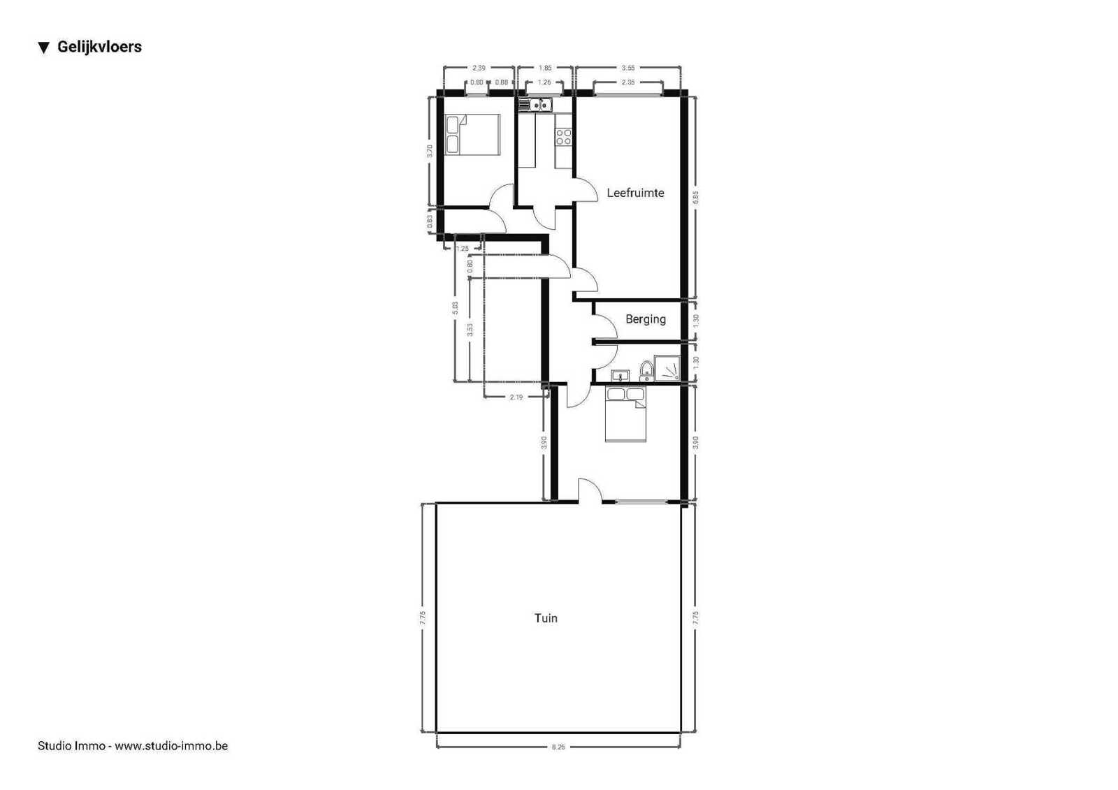
Gelijkvloers: het grootste appartement met tuin en rechtstreekse toegang tot een garage, kelderbergingen voor elk appartement, en 6 garages (waarvan 2 met een ruime oprit).

Eerste verdieping: 3 appartementen van ca. 78 m², waaronder 2 met 2 slaapkamers en 1 met 1 slaapkamer en terras.

Tweede verdieping: identieke indeling met opnieuw 3 appartementen van ca. 78 m², waarvan 2 met 2 slaapkamers (1 met terras) en 1 met 1 slaapkamer en terras.

De garages zijn niet inbegrepen in de vraagprijs en kunnen optioneel worden bijgekocht voor € 180.000.

Troeven:

In totaal 7 appartementen met tuin, terrassen en kelderbergingen

6 garages waarvan 2 met oprit

Ideale opportuniteit voor investeerders

Volledige aankoop van het gebouw

Na renovatie biedt dit pand een aantrekkelijk rendement en tal van mogelijkheden.

📞 Interesse? Bel 03 535 12 75 voor meer informatie, foto's of een afspraak.
Surf naar www.immopoint.be en download alle EPC's, asbestattesten en plannen.

Opmerkingen:

Renovatieplicht: gebouwen met energielabel E of F moeten binnen 6 jaar energetisch gerenoveerd worden tot minstens label D. Dit pand valt onder de renovatieplicht.

Steynstraat 111 - 2660 Hoboken 1
Steynstraat 111 - 2660 Hoboken 2
Steynstraat 111 - 2660 Hoboken 3
Steynstraat 111 - 2660 Hoboken 4
Steynstraat 111 - 2660 Hoboken 5
Steynstraat 111 - 2660 Hoboken 6
Steynstraat 111 - 2660 Hoboken 7
Kevin Van Ham

Contacteer uw makelaar

Ik ben Kevin Van Ham, jouw makelaar voor dit appartement te Hoboken , waarmee kan ik u helpen?

Kevin Van Ham

Contacteer uw makelaar

Ik ben Kevin Van Ham, jouw makelaar voor dit appartement te Brasschaat, waarmee kan ik u helpen?

Contacteer ons

Om deze functie te gebruiken dient u ingelogd te zijn.

Login / maak een account aan