fbpixel
Haantjeslei 197, 2018 Antwerpen
E

TE RENOVEREN OPBRENGSTEIGENDOM MET 4 APPARTEMENTEN IN ZUID-ANTWERPEN

location 2018 Antwerpen
bathroom

4  badkamer(s)

bedroom

8  slaapkamer(s)

ground surface

201,66 m² grondopp.

building year

Bouwjaar: 1969

price

€ 895.000

Positieve punten

  • Renovatieproject
  • Opbrengsteigendom
  • Gunstige ligging
  • Vier appartementen
  • Grote tuin

MONDELING VERKOCHT!! MONDELING VERKOCHT!!

TE RENOVEREN OPBRENGSTEIGENDOM MET 4 APPARTEMENTEN IN ZUID-ANTWERPEN

In de rustige buurt rond de stokerij van Elixir d’Anvers, vlak bij Park Hof van Leysen en nabij de Van Schoonbekestraat, bevindt zich deze te renoveren opbrengsteigendom bestaande uit 4 appartementen waarvan het gelijkvloers een privatieve tuin van meer dan 20 meter diep heeft.

Indeling van het gebouw

Gelijkvloers appartement:

Inkomhal: Centrale toegang tot de verschillende ruimtes. Leefruimte: Gelegen aan de straatzijde, geschikt voor een open leefconcept. Keuken: Aparte keuken met mogelijkheden tot uitbreiding of integratie. Slaapkamers: Eén ruime slaapkamer achteraan. Tweede kamer, eveneens rustig gelegen, geschikt als slaapkamer of bureau. Badkamer: Ingericht met douche en lavabo, te vernieuwen. Tuin: Diepe privatieve tuin (ca. 130 m²) met plaats voor terras en beplanting. Kelder: Aparte privatieve kelderberging inbegrepen.
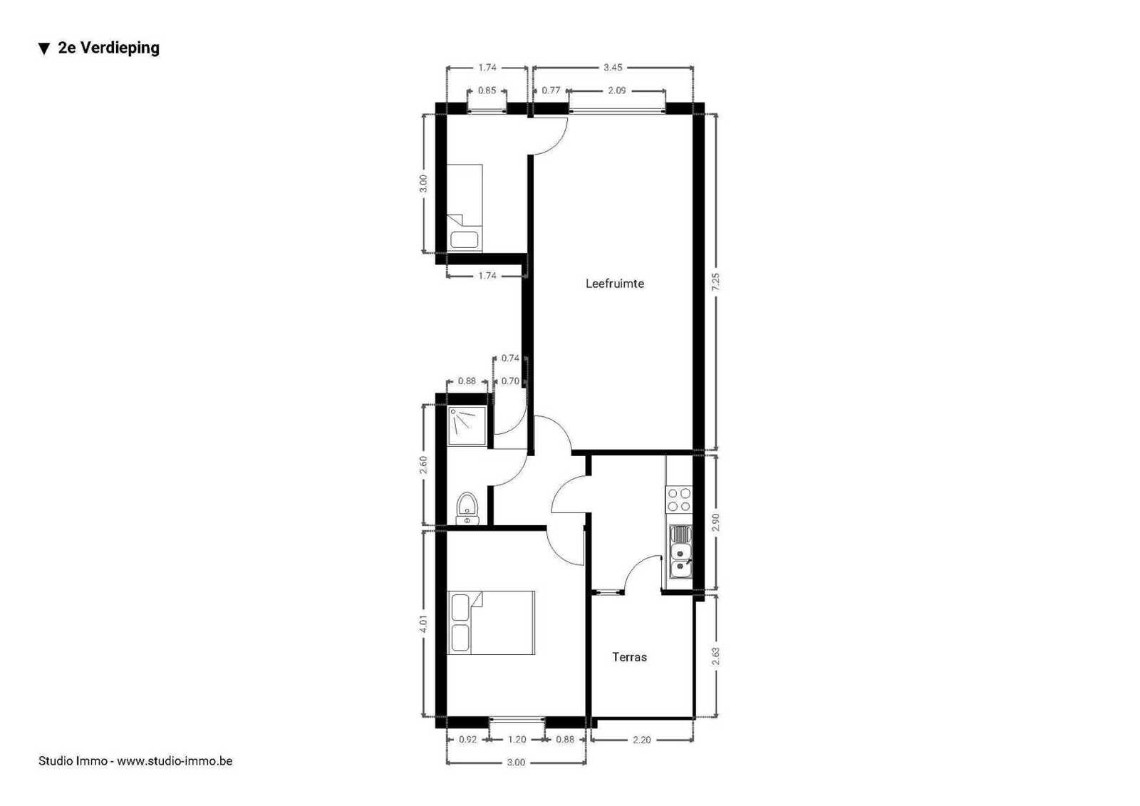
Eerste, tweede en derde verdieping: Drie appartementen van telkens ca. 73 m².

Indeling:

Leefruimte: Grote kamer van ca. 25 m² met rechtstreekse lichtinval.

Keuken: Afzonderlijke keukenruimte met toegang tot het terras.

Terras: Buitenterras van ca. 6 m², gericht naar de achterzijde van het gebouw.

Slaapkamers:

Een ruime slaapkamer van ca. 12 m².

Een tweede, compacte kamer (ca. 5 m²) die bruikbaar is als bureau, dressing of logeerkamer.

Badkamer: Ingericht met douche, lavabo en toilet.

Kelder: Privatieve, ruime kelderberging inbegrepen, enkel met de trap te bereiken.

Dit appartementsgebouw - zonder lift - met tuin biedt interessante mogelijkheden voor wie op zoek is naar een renovatieproject in een goed gelegen buurt.

Meer info of een bezoek? Bel 03 535 12 75.

BEWOONBARE OPPERVLAKTE: De vermelde “bewoonbare oppervlakte” is gebaseerd op de “bruikbare vloeroppervlakte” zoals vermeld in het EPC.
RENOVATIEPLICHT: Gebouwen met een energielabel “E” of “F” zullen verplicht binnen de 6 jaar energetisch gerenoveerd moeten worden en dit zodat ze minstens over een energielabel “D” beschikken. Bij dit pand zal de renovatieplicht dus van toepassing zijn.

Overige details

Algemene info +
Referentie nr.
7317013
Prijs
€ 895.000
Adres
Op aanvraag
Beschikbaar
Vanaf akte
Staat
Te renoveren
Bouwjaar
1969
Oppervlakte grond
201,66m²
Dakmateriaal
Platdak
Indeling / ruimtes +
Slaapkamers
8
Badkamers
4
Terras
Ja
Kelder
Ja
Tuin
Ja
Energie +
EPC waarde
432kWh/m²
EPC unieke code
20251028-0003721268-gd-1
Verwarming (type)
Individueel
Verwarming
Gas cv
Voorzieningen +
Elektriciteitskeuring?
Nee
Stedenbouwkundig +
Stedenbouwkundige vergunning
Vergunning uitgereikt
Dagvaarding en herstelvordering
Rechterlijke herstelmaatregel opgelegd
Stedenbouwkundige bestemming
Woongebied
Voorkooprecht
Geen voorkooprecht ruimtelijke ordening aanwezig
Verkavelingsvergunning
Geen vergunning uitgereikt
WORG
Nee
Financieel +
Prijs:
€ 895.000
Grondaandeel:
€ 895.000
Registratierechten (2%):
€ 17.900
BTW:
Niet onder BTW
Totaal (Zonder notariskosten):
€ 912.900

2% geldt enkel indien voldaan wordt aan de voorwaarden, en als dit de enige en eigen woning is.

Kevin Van Ham

Contacteer uw makelaar

Ik ben Kevin Van Ham, jouw makelaar voor dit huis te Antwerpen, waarmee kan ik u helpen?

Kevin Van Ham

Contacteer uw makelaar

Ik ben Kevin Van Ham, jouw makelaar voor dit huis te Brasschaat, waarmee kan ik u helpen?

Contacteer ons

Veelgestelde vragen

Ik doe een bod, wat nu? +

Zodra je een bod doet én de verkoper accepteert het, ben je verplicht om door te gaan met de aankoop. Het intrekken van je bod - om welke reden ook - kan resulteren in een schadevergoeding die zo’n 10% van de aankoopprijs bedraagt.

Lees meer
Hoeveel kosten betaal ik nog bovenop de aankoopprijs? +

Er komen nog heel wat kosten kijken bovenop de aankoopprijs: verzekeringen, registratierechten... Laat je goed informeren, en lees in onze kopergids waar je rekening mee moet houden.

Lees meer
Ik wil een nieuwe woning kopen, maar moet mijn oude ook nog verkopen. Help! +

Je huis of appartement verkopen is een belangrijke stap in je leven. Eén met uitdagingen, want er zijn heel wat zaken waar je extra rekening mee moet houden. Van attesten en vergunningen tot stijgende hypotheekrentes en dalende interesse van potentiële kopers. Denk je er dus aan om te verkopen? Of heb je een nieuwe woning op het oog? Met onze verkopersgids bieden we nuttige tips die jou vooruit helpen voor, tijdens en na de verkoop.

Lees meer

Ontdek al onze gelijkaardige panden

Prestige
BREDABAAN 159 - MERKSEM afbeelding 1
BREDABAAN 159 - MERKSEM afbeelding 2
BREDABAAN 159 - MERKSEM afbeelding 3
BREDABAAN 159 - MERKSEM afbeelding 4

Huis te Antwerpen Merksem

€ 1.125.000

location Bredabaan 159, 2170 Antwerpen Merksem
surface 427 m²
bedrooms 5  slaapkamer(s)
bathrooms 3  badkamer(s)
F
energiezuinig
Stroomstraat 2 - 2040 Antwerpen afbeelding 1
Stroomstraat 2 - 2040 Antwerpen afbeelding 2
Stroomstraat 2 - 2040 Antwerpen afbeelding 3
Stroomstraat 2 - 2040 Antwerpen afbeelding 4

Huis te Antwerpen

€ 685.000

location Stroomstraat 2, 2040 Antwerpen
surface 273 m²
bedrooms 3  slaapkamer(s)
bathrooms 2  badkamer(s)
B
Prestige
Marcel De Backerstraat 30 - 2180 Ekeren afbeelding 1
Marcel De Backerstraat 30 - 2180 Ekeren afbeelding 2
Marcel De Backerstraat 30 - 2180 Ekeren afbeelding 3
Marcel De Backerstraat 30 - 2180 Ekeren afbeelding 4

Huis te Ekeren

€ 879.000

location Marcel De Backerstraat 30, 2180 Ekeren
surface 309 m²
bedrooms 7  slaapkamer(s)
bathrooms 3  badkamer(s)
C
Prestige
PELIKAANDREEF 3 SCHOTEN afbeelding 1
PELIKAANDREEF 3 SCHOTEN afbeelding 2
PELIKAANDREEF 3 SCHOTEN afbeelding 3
PELIKAANDREEF 3 SCHOTEN afbeelding 4

Villa te Schoten

€ 995.000

location Pelikaandreef 3, 2900 Schoten
surface 298 m²
bedrooms 3  slaapkamer(s)
bathrooms 2  badkamer(s)
E
Prestige
COLUMBUSLEI 8 TE SCHOTEN afbeelding 1
COLUMBUSLEI 8 TE SCHOTEN afbeelding 2
COLUMBUSLEI 8 TE SCHOTEN afbeelding 3
COLUMBUSLEI 8 TE SCHOTEN afbeelding 4

Villa te Schoten

€ 999.000

location Columbuslei 8, 2900 Schoten
surface 358 m²
bedrooms 4  slaapkamer(s)
bathrooms 2  badkamer(s)
C
VIP
Elshoutbaan 8 - 2930 Brasschaat afbeelding 1
Elshoutbaan 8 - 2930 Brasschaat afbeelding 2
Elshoutbaan 8 - 2930 Brasschaat afbeelding 3
Elshoutbaan 8 - 2930 Brasschaat afbeelding 4

Villa te Brasschaat

€ 875.000

location Elshoutbaan 8, 2930 Brasschaat
surface 348 m²
bedrooms 6  slaapkamer(s)
bathrooms 2  badkamer(s)
F

Verkoop uw eigen woning met Immo Point

Overweegt u om uw woning te verkopen?

Gratis schatting van uw woning
verkoop

Om deze functie te gebruiken dient u ingelogd te zijn.

Login / maak een account aan