fbpixel
ESSENDONK 1
F

UITZONDERLIJK WOONHUIS MET MAGAZIJN (300m²)

location Essendonk 1, 2910 Essen
bathroom

1  badkamer(s)

bedroom

1  slaapkamer(s)

surface

115 m² bew. opp.

ground surface

641 m² grondopp.

building year

Bouwjaar: 1952

price

€ 379.000

In het hart van Essen een pand met enorm veel mogelijkheden opgedeeld in een woning ca. 115m² en magazijnen ca. 300m².
Het potentieel na grondige verbouwing kan u zien in de opgemaakte renders en zijn uitzonderlijk!
Gelegen naast De Oude Pastorij en het Stoerwoud in het gezellige en pitoreske centrum van Essen.

Voor de constructie is in 1976 een vergunning afgeleverd voor het verbouwen van de twee kleine loodsen.
Hierbij is vermoedelijk de toegestane bebouwde oppervlakte overschreden met ca. 2,5 meter naar voor. Belangrijk om weten is dat er géén herstelvordering is opgelegd of stedenbouwkundige overtreding bekend volgens de stedenbouwkundige inlichtingen. Verdere vragen hieromtrent kan u richten aan ons kantoor.

De mogelijkheid tot een penthouse met magazijn aan huis is perfect binnen het bestaande volume uit te voeren.
Penthouse met een totaaloppervlakte van ca. 252m². Met bijkomende oost-zuidgerichte terrassen van ca. 17 en 16m².
Waarbij er een inkomhal op het gelijkvloers afgescheiden wordt van het magazijn. De huidige keuken afgebroken wordt om plaats te maken voor een groot terras. De bestaande woonkamer omgebouwd wordt tot leefkeuken met veel natuurlijke lichtinval door het gebruik van grote raampartijen die in het noorden uitkijken op het Stoerwoud en de Oude Pastorij en in het westen ramen die de avondzon in de keuken laat binnenvallen. Op de plannen is de badkamer zodanig geplaatst dat het bestaande raam gebruikt kan worden voor natuurlijke verluchting. Bijkomend blijft er dan nog ca. 21m² over die u vrij kan inrichten tot bureau, wasplaats of game-room.
Boven het bestaande magazijn kunnen drie slaapkamers onder schuin dak gemaakt worden, met een oppervlakte van ca. 150m² is het hier volledig naar eigen wens af te werken. De kostprijs voor deze verbouwingen is volledig afhankelijk van de afwerking die u verkiest en niet inbegrepen in de vraagprijs.

Voor de vraagprijs bieden wij u een degelijke constructie, die deels vernieuwd is en ingedeeld als volgt:

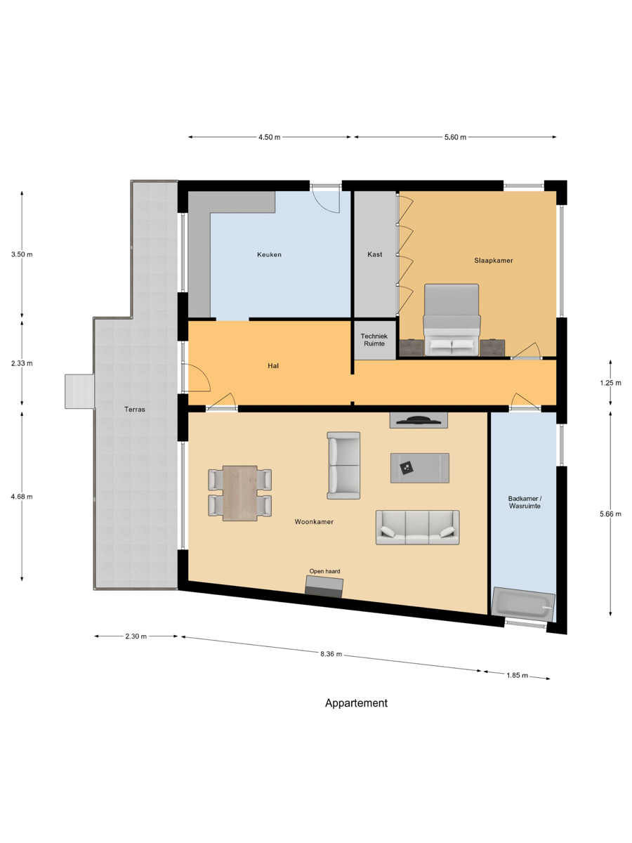
APPARTEMENT
In het appartement een ruime inkomhal die toegang geeft tot de keuken ca. 16m². Een grote woonkamer van ca. 45m², grote raampartij uitkijkend op het terras. De nachthal beschikt over een hoekje met technieken. Achterin de woning één slaapkamer ca. 25m² en een badkamer met wasplaats van ca. 10m². Oostgericht terras vooraan van ca. 12m² bereikbaar met een trap vanuit de binnenkoer.

Op het gelijkvloers zijn drie magazijnen met een totale oppervlakte van circa 300m².
MAGAZIJN 1
Schuifdeur 2m80 hoog, ca. 50m², aangesloten met elektriciteit, water, technieken en recent voorzien van een nieuw dak.
MAGAZIJN 2
Grote deur 2m80 hoog, ca. 50m², aangesloten met elektriciteit, water, technieken en recent voorzien van een nieuw dak.
MAGAZIJN 3
Elektrische sectionaal poort 2m80 hoog, ca. 200m² , technieken aanwezig en grondig op te frissen.


Het perceel is volledig omheind en veilig afgesloten met een elektrische toegangspoort.

RENOVATIEPLICHT

Gebouwen met een energielabel “E” of “F” zijn verplicht binnen de 5 jaar energetisch gerenoveerd te worden en dit zodanig dat ze minstens over een energielabel “D” beschikken. Bij dit pand is de renovatieplicht van toepassing. De woning heeft een EPC-label F. Hierdoor komt u in aanmerking voor tal van renovatiepremies.

U kan ons bereiken op het nummer 03 240 11 99 of via mail op wuustwezel@immopoint.be

Overige details

Algemene info +
Referentie nr.
6973828
Prijs
€ 379.000
Adres
Essendonk 1, 2910 Essen
Staat
Te renoveren
Bouwjaar
1952
Oppervlakte grond
641m²
Bewoonbare oppervlakte
115m²
Indeling / ruimtes +
Slaapkamers
1
Slaapkamer 1 opp.
25m²
Oppervlakte woonkamer
45m²
Badkamers
1
Aantal toiletten
1
Terras
Ja
Terras 1 opp.
12m²
Garages
3
Keuken opp.
16m²
Energie +
EPC waarde
898kWh/m²
EPC unieke code
2626326-res-1
Verwarming
Stookolie cv
Voorzieningen +
Elektriciteitskeuring?
Ja, conform
Stedenbouwkundig +
Stedenbouwkundige vergunning
Vergunning uitgereikt
Dagvaarding en herstelvordering
Geen rechterlijke herstelmaatregel of bestuurlijke maatregel opgelegd
Stedenbouwkundige bestemming
Woongebied
Voorkooprecht
Geen voorkooprecht ruimtelijke ordening aanwezig
Verkavelingsvergunning
Geen vergunning uitgereikt
WORG
Nee
Financieel +
Prijs:
€ 379.000
Grondaandeel:
€ 379.000
Registratierechten (2%):
€ 7.580
BTW:
Niet onder BTW
Totaal (Zonder notariskosten):
€ 386.580

2% geldt enkel indien voldaan wordt aan de voorwaarden, en als dit de enige en eigen woning is.

Glenn De Weerdt

Contacteer uw makelaar

Ik ben Glenn De Weerdt, jouw makelaar voor dit huis te Essen, waarmee kan ik u helpen?

Glenn De Weerdt

Contacteer uw makelaar

Ik ben Glenn De Weerdt, jouw makelaar voor dit huis te Wuustwezel, waarmee kan ik u helpen?

Contacteer ons

Essen

Ontdek de buurt

Essen, een dynamische grensgemeente met een sterke focus op ondernemerschap en een levendige gemeenschap.

Veelgestelde vragen

Ik doe een bod, wat nu? +

Zodra je een bod doet én de verkoper accepteert het, ben je verplicht om door te gaan met de aankoop. Het intrekken van je bod - om welke reden ook - kan resulteren in een schadevergoeding die zo’n 10% van de aankoopprijs bedraagt.

Lees meer
Hoeveel kosten betaal ik nog bovenop de aankoopprijs? +

Er komen nog heel wat kosten kijken bovenop de aankoopprijs: verzekeringen, registratierechten... Laat je goed informeren, en lees in onze kopergids waar je rekening mee moet houden.

Lees meer
Ik wil een nieuwe woning kopen, maar moet mijn oude ook nog verkopen. Help! +

Je huis of appartement verkopen is een belangrijke stap in je leven. Eén met uitdagingen, want er zijn heel wat zaken waar je extra rekening mee moet houden. Van attesten en vergunningen tot stijgende hypotheekrentes en dalende interesse van potentiële kopers. Denk je er dus aan om te verkopen? Of heb je een nieuwe woning op het oog? Met onze verkopersgids bieden we nuttige tips die jou vooruit helpen voor, tijdens en na de verkoop.

Lees meer

Ontdek al onze gelijkaardige panden

Huis te Essen

€ 349.000

location Over d'Aa 122, 2910 Essen
surface 165 m²
bedrooms 4  slaapkamer(s)
bathrooms 1  badkamer(s)
D
energiezuinig
Leopold Scheiperslaan 64 afbeelding 1
Leopold Scheiperslaan 64 afbeelding 2
Leopold Scheiperslaan 64 afbeelding 3
Leopold Scheiperslaan 64 afbeelding 4

Bel-Etage te Kapellen

€ 430.000

location Leopold Scheiperslaan 64, 2950 Kapellen
surface 148 m²
bedrooms 3  slaapkamer(s)
bathrooms 1  badkamer(s)
B

Verkoop uw eigen woning met Immo Point

Overweegt u om uw woning te verkopen?

Gratis schatting van uw woning
verkoop

Om deze functie te gebruiken dient u ingelogd te zijn.

Login / maak een account aan